|
Probablemente todo aficionado serio se plantea en algún momento disponer de un lugar fijo de observación. En el caso de una agrupación astronómica es más habitual, dado que las posibilidades son mayores al implicarse más gente en el proyecto.
El
primer proyecto en Cumbres de Calicanto
En la Asociación Valenciana de Astronomía (AVA) no éramos ajenos a este sueño, y la construcción de un observatorio siempre estuvo entre los planes de los diferentes equipos directivos desde los primeros años de existencia de la entidad.
A mediados de la década de 1970, la junta directiva presidida por Angel Claassen ya proyectaba la construcción de un observatorio en Las Cumbres de Calicanto.
Hoy sabemos que es un lugar inapropiado por estar junto a la ciudad de Valencia, pero hay que entender que en aquellos años la
contaminación lumínica no era un tema preocupante. Personalmente yo observaba desde mi azotea en pleno barrio de Ruzafa desde donde se veía la Vía Láctea a simple vista.
|
 |
 |
|
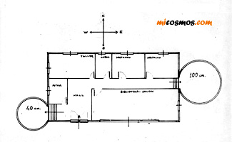
Proyecto
de observatorio en Cumbres de Calicanto (pinchar sobre la imagen
para agrandar) |
Para el diseño de la obra se contactó con el arquitecto D. Enrique Viguer, que era socio de la asociación. Paralelamente se iniciaron gestiones con los herederos del Dr. López Trigo (socio también y creador, por cierto, del TriNarajus) que había fallecido y poseía un telescopio de 26 cm que la junta directiva esperaba nos fuera cedido.
Pero cuando las cosas se tuercen no hay nada que hacer. Pasaron los meses, pasaron los años, y no había proyecto por parte del arquitecto, ni nada que hiciera pensar en la cesión del telescopio del Dr. Trigo. Así pues, el proyecto cayó en el olvido.
El
segundo proyecto en Casinos
Algunos años después, se organizaron en Casinos (Valencia) los campos de verano del GEOS, con ediciones en 1980, 1981 y 1983. Tras el éxito de la primera edicióon, y aprovechando las excelentes relaciones de nuestra entidad con la corporación municipal, se planteó la posibilidad de disponer de un lugar de observación fijo en algún lugar del término de Casinos.
Salvador Espinosa, alcalde de la población y entrañable amigo puso a nuestra disposición toda la ayuda necesaria para buscar el emplazamiento. Juan Fabregat y yo inspeccionamos varios lugares, escogiendo como mejor emplazamiento el monte denominado Cerro La Clocha, que con sus 600 metros era la cota más elevada del término municipal.
|
 |
 |
|
Vista
aérea y mapa de cotas del Cerro La Clocha |
En el otoño de 1980 solicitamos formalmente al ayuntamiento de Casinos la cesión de los terrenos necesarios en el emplazamiento escogido.
El
proyecto va tomando forma, ya tenemos terrenos
A primeros de 1981, la corporación municipal aprobaba por unanimidad la cesión de 5.000 metros cuadrados por un periodo inicial de 50 años, al tiempo que se comprometía a iniciar las gestiones ante la Diputación Provincial de Valencia para el acondicionamiento de la carretera. Aquella, aunque de tierra, se hallaba en aceptables condiciones en su primer tramo, justo hasta un chalet habitado. Desde aquel punto restaban unos 500 metros hasta la cima pero el acceso por ese tramo, en aquel momento, sólo era posible en vehículo
todo terreno.
Por parte de la asociación se encargarían del proyecto Luis Rivas, Juan Fabregat, Carlos Crespo y Enrique Genovés. Habría que buscar financiación para construir la obra civil, dado que ya disponíamos de un reflector de 305 mm con óptica de Josep Costas, y una astrocámara de 130 mm.
Contábamos con una segunda baza: la Universidad de Valencia buscaba un emplazamiento para un nuevo observatorio, dado que las instalaciones de la Avenida Blasco Ibáñez, en pleno casco urbano de Valencia, eran las únicas de que disponían. Si
lográbamos instalar un observatorio en el Cerro La Clocha de Casinos, era muy probable que
pudiéramos ofrecer a la Universidad la instalación de su observatorio allí, lo cual supondría un aval decisivo para que el proyecto se materializara.
Siguiendo un viejo proverbio que dice “pon unas pocas monedas en un bote, agítalo y verás cuanto suena”, nos propusimos comenzar con lo mínimo necesario para hacer funcionar la instalación. El trabajo realizado y los resultados obtenidos respaldarían y
justificarían las posteriores inversiones en mejoras.
No pretendíamos un edificio maravilloso con una cúpula semiesférica y la última tecnología, nos bastaría con una caseta con techo corredero y nuestro reflector. Tampoco hacía falta una carretera de acceso asfaltada, sino que el camino fuera transitable en automóvil.
|
 |
 |
|
 |
 |
|
Imágenes de agosto
de 1984. De
izquierda a derecha y de arriba a abajo: Inicio del último tramo del
camino que se tenía que acondicionar. Llegada al final del
camino. Joan M. Bullón y Luis Rivas en la cima del Cerro La
Clocha. Vista de los terrenos de secano desde la cima.
ARCHIVO DEL AUTOR |
Estábamos plenamente convencidos de que lo que haríamos allí, daría sus frutos. Disponíamos de grupos de observación en distintas disciplinas largamente consolidados (variables, heliofísica, ocultaciones). Por tra parte, varios observadores extranjeros estaban interesados en poder venir a observar a Casinos. Podríamos organizar jornadas de observación pública con repercusión en los medios de comunicación, en lo cual ya teníamos experiencia. Estaba la baza de la
Universidad y la de las publicaciones que surgieran de nuestro trabajo. ¿Quién se iba a negar a apoyar algo que, con medios modestos, ya diera mucho que hablar?. Nos
encargaríamos de que las pocas monedas del bote sonaran mucho.
La carretera de acceso se iba a convertir, como veremos, en el talón de Aquiles del proyecto.
Salvador Espinosa,
alcalde de Casinos, nos informa de que un tractor había arrancado los matojos de lo que parecía una senda y ahora ya tenía un ancho como una carretera, pero el firme seguía siendo horroroso. También nos informó de que había una caseta de obra, completamente metálica, de 4 x 3 metros, de la que podríamos disponer para nuestro uso. Si nos ocupábamos de desmontarla un tractor la subiría a La Clocha. Dicho y hecho, un sábado por la mañana Juan
Fabregat, Jorge Gómez, Jaime y Jesús Busquets y un servidor nos fuimos a desmontar la caseta bajo un sol abrasador.
Como
anécdota de la acalorada que cogimos, baste decir que repusimos fuerzas en el bar de la localidad con varios litros de cerveza y
diecisiete platos de patatas bravas entre los cinco operarios.
Cuando
se desbarata el proyecto. ¿Quién es un furtamantes?
Pero volvamos al tema en serio. El 8 de mayo de 1983 sería el día clave en que todo cambiaría de rumbo. En esa fecha se celebraron las elecciones municipales en toda España. En Casinos, nuestro amigo y mentor Salvador Espinosa era sustituido en la alcaldía por Joaquín Espinosa. A priori, tras las primeras conversaciones con el nuevo edil, todo hacía pensar que el proyecto continuaría adelante tal y como estaba planificado. Sin embrago las cosas de desarrollaron de un modo tal que todo se fue al traste.

El nuevo alcalde se caracterizó por la
inconcreción, cuando no por las evasivas. Según el, la carretera no podría
ser un simple camino, debía ser una vía en toda regla, asfaltada, con dos
carriles de circulación más arcenes. Pero eso eran palabra mayores. Eso costaba dos millones y medio de pesetas (15.000 euros al cambio), ¡ pero del año 1983 !.
Además, nos informó de que había conseguido una subvención de la Diputación por valor de medio millón de pesetas (3.000 euros) para la obra que se haría en lo alto del Cerro.
Sobre el tema de la carretera hicimos lo posible con que se le quitara de la cabeza, con menos nos bastaba y era casi imposible que la Diputación se gastara tanto dinero en un camino tan poco transitado, más aún cuando había muchas carreteras esperando inversiones. Sobre la subvención para la obra, siempre con evasivas, ningún documento al respecto, sólo teníamos su palabra.
Nuestro compañero Enrique Genovés inició las gestiones por otra vía ante la Diputación, para confirmar el tema de la subvención. Pero según pudo averiguar no había ninguna partida económica para ello.
La conclusión era fácil, no había tal subvención y el tema de la carretera asfaltada era utilizado por el alcalde para dinamitar el proyecto.
Cierto día, surgió una acalorada discusión sobre ambos temas entre Enrique Genovés y el alcalde. El primero acusaba al segundo de vender castillos en el aire, sin subvención y sin carretera. El segundo, molesto con las gestiones realizadas por Enrique zanjó para siempre el tema con un contundente “eres un
furtamantes”.
Y ese apelativo que lanzó, sería el sobrenombre con el que sería
conocido el alcalde por nuestra comunidad astronómica.
Sería necesaria casi otra década para que el observatorio fuese una realidad, pero esta vez en Aras de los Olmos, de la mano de Joan Manuel Bullón.
DOCUMENTOS
RELACIONADOS
|